Königswinter-Ittenbach:
02223 9098888
Asbach:
02683 948120
Horhausen:
02687 2040
Startseite
Immobilienangebote
Verkaufen
Vermieten
Unternehmen
Unsere Partner
Kontakt
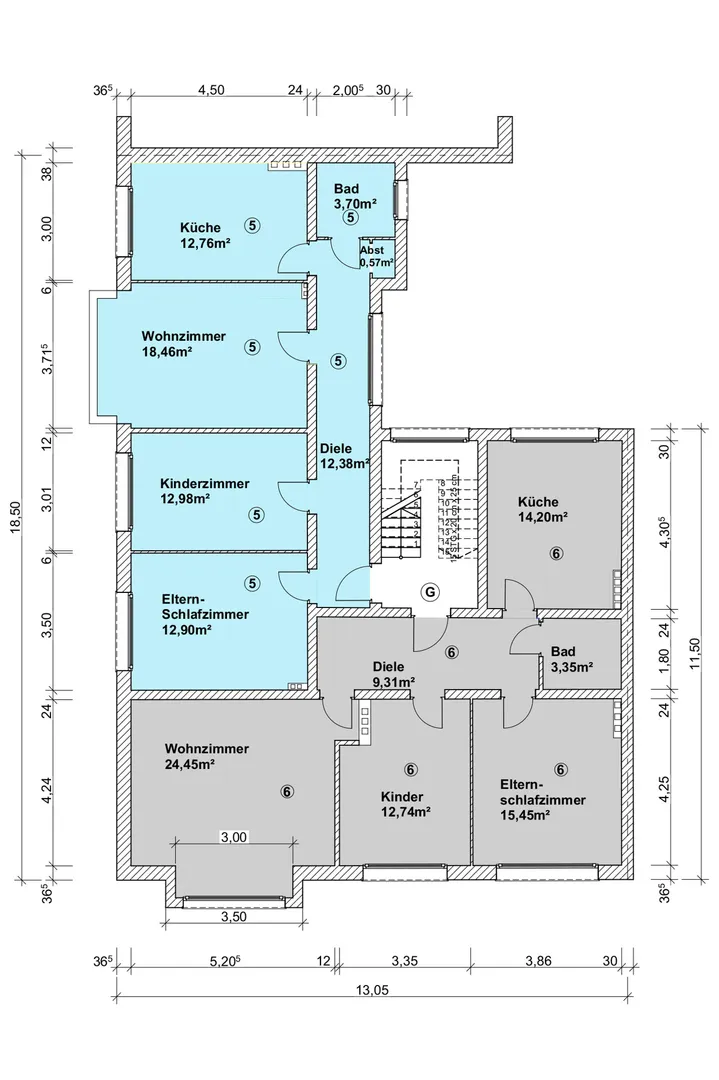
Attraktives Mehrfamilienhaus in Jülich mit 6 Einheiten, 17 Zimmern, starke Rendite & Ausbaupotenzial
Haus zum Kauf
Bilder anzeigen (22)
859.000 €
Kaufpreis
446 m²
Fläche (ca.)
17
Zimmer
242 m²
Grundstück (ca.)
1960
Baujahr
Preise & Kosten
Standort
52428 Jülich
Preise
Kaufpreis
859.000 €
Käuferprovision
3,57% inkl. MwSt.
Die Immobilie
Haus zum Kauf
Objekt-Nr
20049-3704
Kategorie
Standard
Unterkellert
Ja
Zustand
gepflegt
Ihre Anfrage
Energieverbrauchsausweis
0
25
50
75
100
125
150
175
200
225
250
134,60 kWh/(m²*a)
Endenergieverbrauch
134,60 kWh/(m²*a)
Befeuerungsart
gas
Heizungsart
etage
Wesentlicher Energieträger
GAS
Energieeffizienzklasse
E
Gültig bis
24.03.2035
Energieausweis
2014
Zurück zur Übersicht